STEELE LOFTS

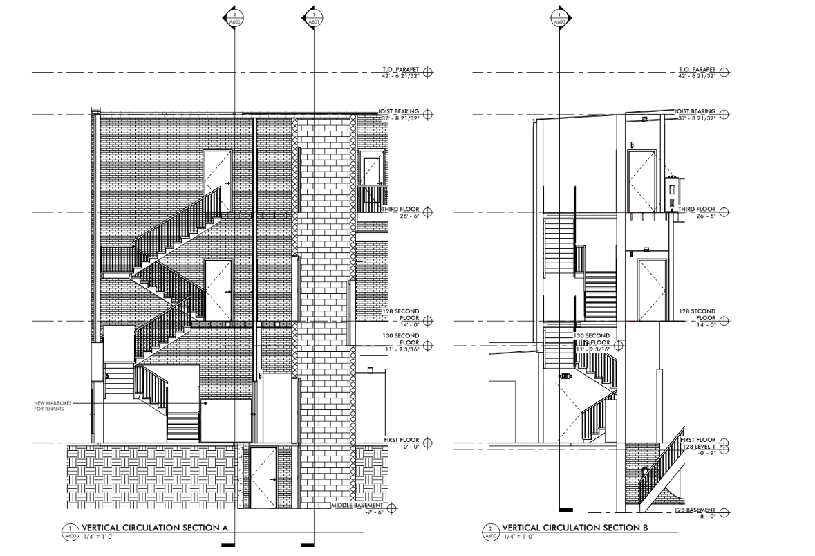
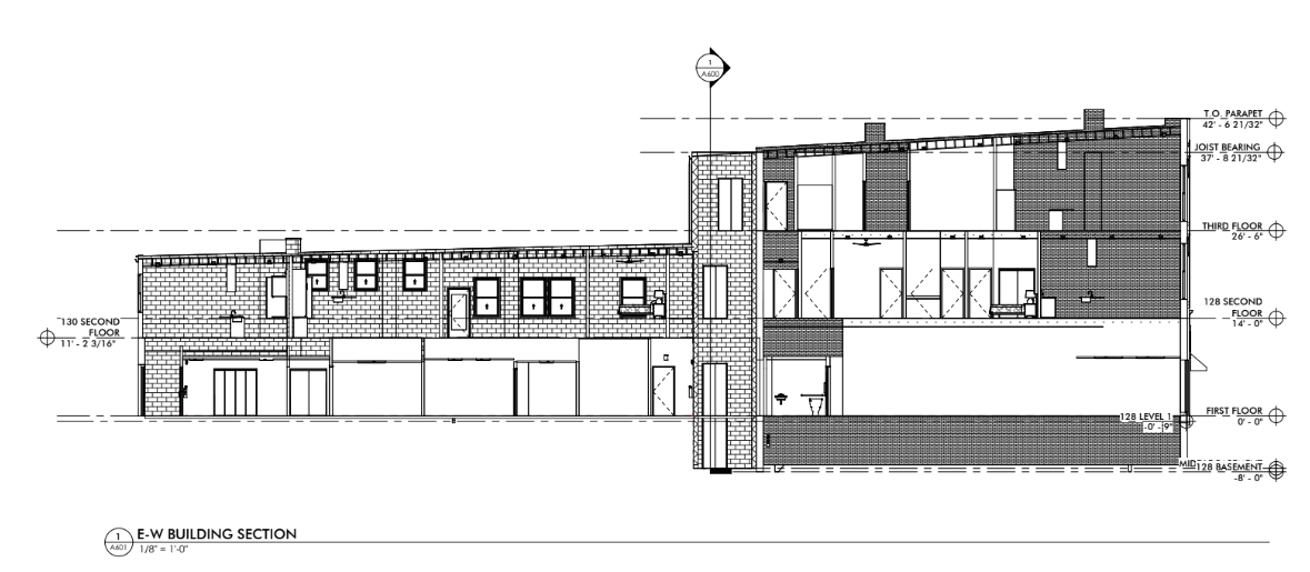
This is a downtown revitalization project in Adrian, MI.  The Steele Lofts is composed of two downtown parcels that will be redeveloped in 2025.  The finished development will have 8 luxurious apartments with a mix of one and two bedroom units, some with dedicated outdoor entertainment space and five commercial suites on the first floor.

Previous
Previous

Strongback Project

Next
Next

137 S Main Street